
Cloverfield Affordable House Kit
Compact, efficient, and built for real life — The Cloverfield Affordable House Kit is an ideal solution for homeowners, investors, and DIY builders who want maximum value in a smaller footprint.
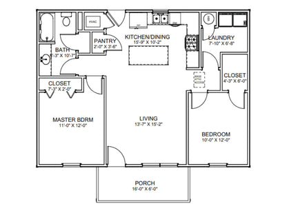
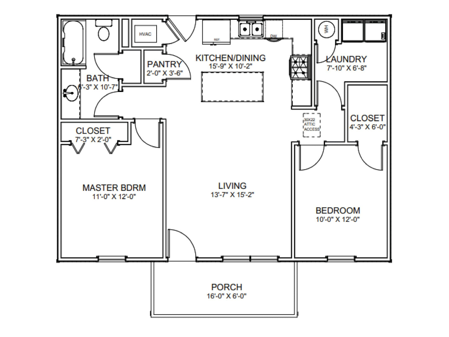
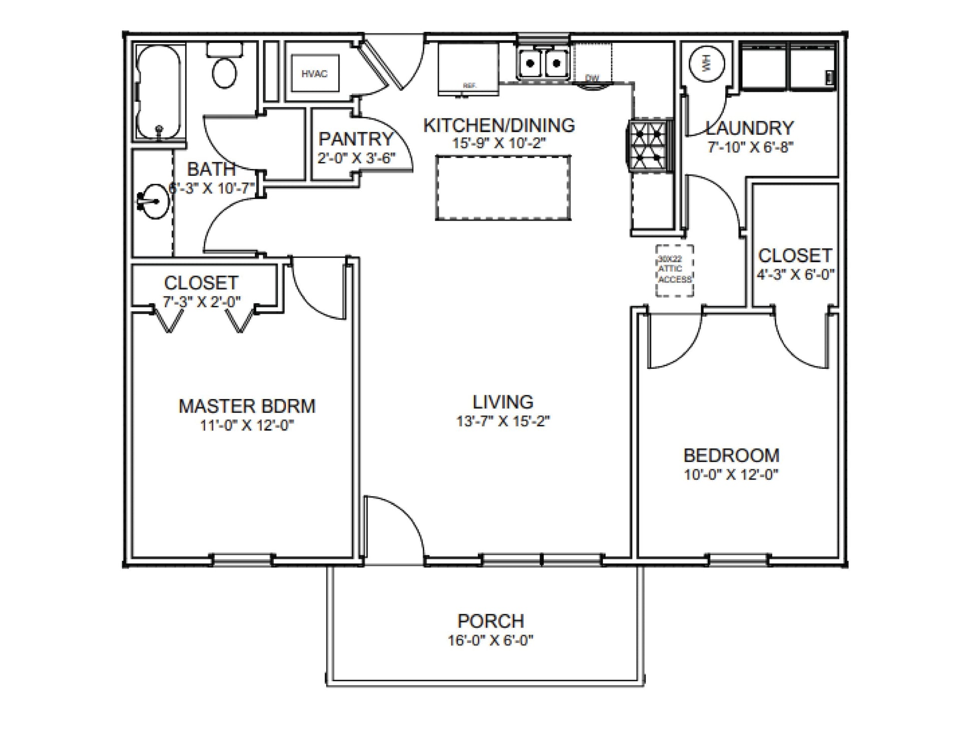
At 936 sq. ft. of living space (just shy of 940 sq. ft.), the Cloverfield features a smart 2-bedroom, 1-bath floor plan that feels open and functional. For buyers who don’t need the second bedroom, the layout can also be configured as a 1-bedroom, 1-bath, making it perfect for couples, retirees, guest homes, rentals, or homesteads.
Built with 2×6 exterior walls for strength, insulation, and code readiness — and 2×4 interior walls for efficient layouts — the Cloverfield delivers durability well beyond typical small home kits. Its 26×36 footprint, welcoming front porch, and long-lasting metal exterior make it a standout in the affordable housing category.
The kit is designed to get dried-in and weather-tight quickly, allowing you to finish the interior on your own schedule and budget.
PRICE & KIT OVERVIEW
-
Price: $29,900
-
Bedrooms: 2 (or optional 1-bedroom layout)
-
Bathrooms: 1
-
Garage: No
-
Total Living Space: 936 sq. ft.
-
Total Square Footage (Under Roof): 1,030 sq. ft.
-
Dimensions: 36 ft. (L) × 26 ft. (D) × 8 ft. (H)
-
Roof Pitch: 6/12
INSTALLATION & DELIVERY
Installation Availability
Due to high demand, installation is only available within 150 miles of Scottsburg, Indiana.
-
Installation Fee: $10,000
-
Installation includes assembly of the shell only
-
Interior finishing is not included
Customers outside the installation area may:
-
Install the kit DIY, or
-
Hire their own local contractor
We do not recommend outside contractors unless they are part of our Amish or Mennonite builder network.
Delivery Information
🚚 FREE DELIVERY — LIMITED TIME ONLY
-
Delivery is currently included in the price for a limited time
-
We ship to the Lower 48 states
-
Alaska and Hawaii excluded
Additional taxes, fees, or surcharges may apply depending on location.
Pricing and delivery offers are subject to change without notice.
WHAT’S INCLUDED IN THE CLOVERFIELD KIT
✔ 26×36×8 Basic Shell
✔ Front Porch (as shown)
✔ Exterior Framing: 2×6 Stud Walls (code-ready, fully insulatable)
✔ Interior Framing: 2×4 Stud Walls (144’ included)
✔ Exterior Doors:
• (2) 3' House Doors
✔ Windows (All Double-Pane Vinyl):
• (1) 6×5 Window
• (2) 3×5 Windows
• (1) 2’8”×3 Window
✔ Trusses: 2' On Center
✔ Stud Spacing: 16" On Center
✔ House Wrap Included
✔ Soffit & Fascia Overhang on Roof
✔ 29-Gauge Metal Roofing & Siding
• 40-Year Warranty
• 20 Color Options Available
✔ Upgrade Options Available:
• OSB Sheathing
• Premium Board-and-Batt Metal Siding
FLOOR PLAN CHANGES & MODIFICATIONS
-
Floor plan changes are available for a $2,500 modification fee
-
Modifications may include room layout or bedroom configuration changes
-
Overall structure dimensions (26×36) cannot be changed
-
All changes must remain within the existing footprint
ENGINEERED DRAWINGS & PERMIT NOTICE
We do not provide engineered or stamped drawings with this kit.
Because we ship to the Lower 48 states, building codes and permitting requirements vary by state, county, and municipality.
If engineered plans are required:
-
Start with our generic floor plans
-
Have them reviewed and stamped by a local architect or engineer
-
We can modify the kit to match approved drawings (fees may apply)
Buyers are responsible for verifying all local zoning, permitting, and code requirements prior to purchase.
LEGAL & ZONING DISCLAIMER
-
Buyer is responsible for zoning approval, permits, inspections, and code compliance
-
Foundation, interior finishes, plumbing, electrical, HVAC, and site work are not included
-
Pricing, availability, specifications, and delivery offers are subject to change without notice
-
Additional fees, taxes, or surcharges may apply based on location and project requirements
ABOUT OUR AFFORDABLE HOUSE KITS
-
Shell-only construction
-
Built with 2×6 exterior walls for strength and energy efficiency
-
2×4 interior walls for flexible layouts
-
Designed for fast dry-in and long-term durability
-
Ideal for DIY families, rentals, investors, and affordable housing projects
READY TO ORDER THE CLOVERFIELD?
📞 Call 812-595-4033
Affordable. Efficient. Built to last.
The Cloverfield proves you don’t need a big house to get big value.
Free shipping on orders over $50. Standard delivery takes 5-7 business days.