
The Midnight Ridge Steel Barndo House Kit
Luxury Scale. Sleek Design. Steel-Built for the Long Haul.
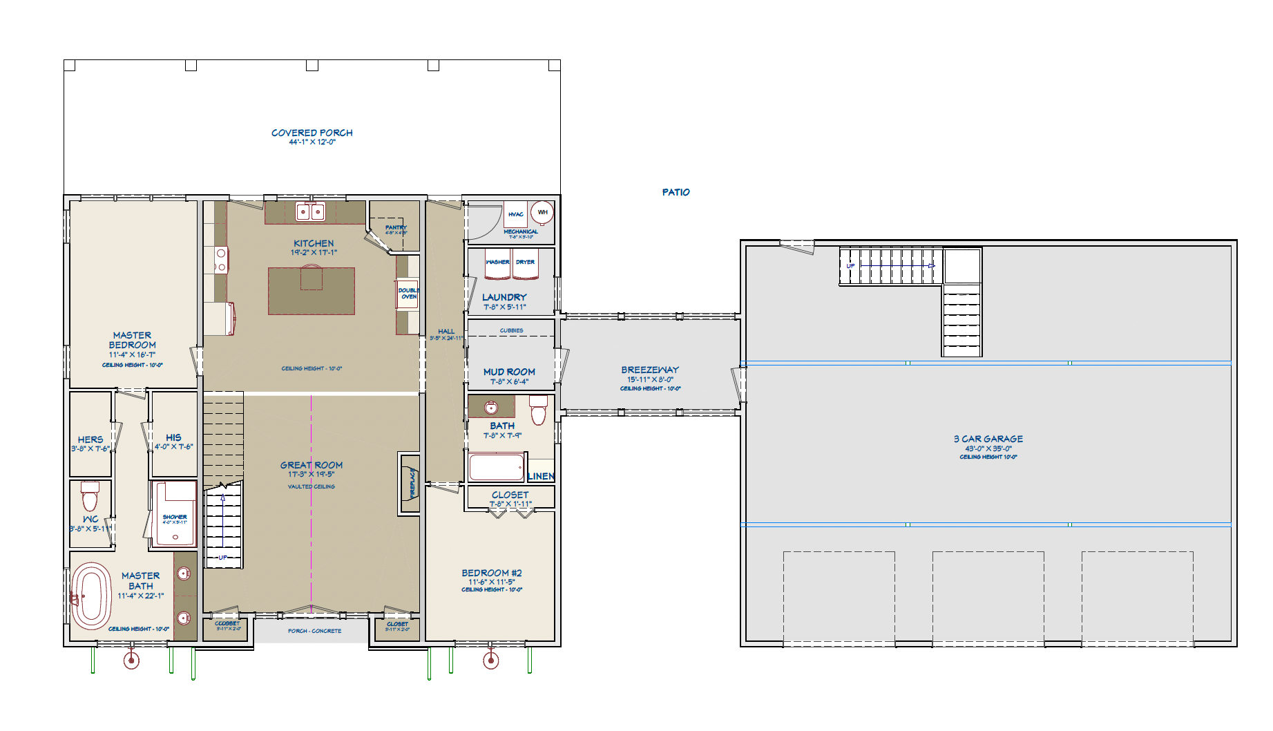
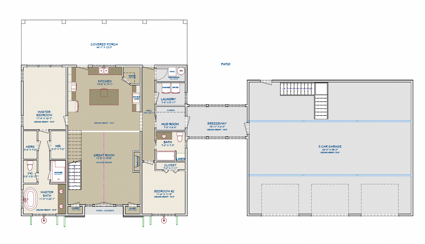
The Midnight Ridge is a bold, high-performance steel barndo house kit designed for comfort, space, and style. With 2,834 sq. ft. of finished living space—including a main level, second story, and a 740 sq. ft. bonus area—this home offers flexibility for families, work-from-home life, or high-end country living. A massive 3-car garage, dramatic vaulted ceilings, and over 700 sq. ft. of porch space round out a design that’s as functional as it is stunning.
🏡 Key Specs:
-
Total Finished Living Area: 2,834 Sq. Ft.
-
Main Level: 1,734 Sq. Ft.
-
Second Level: 359 Sq. Ft.
-
Bonus Room: 740 Sq. Ft.
-
-
Bedrooms: 3
-
Bathrooms: 3
-
Garage: 3 Bays (1,580 Sq. Ft.)
-
Porches: 707 Sq. Ft. of Covered Outdoor Living
-
Total Area Under Roof: 5,121 Sq. Ft.
📐 Exterior Dimensions:
-
Width: 106'
-
Depth: 52'
-
Ridge Height: 26' 6"
🛠 Construction Details:
-
Foundation: Slab
-
Exterior Walls: 2x6 framing
-
Roof System: Engineered Trusses
-
Floor System: I-Joists
-
Roof Pitch: 8:12
-
Ceiling Heights:
-
Main Level: 10'
-
Second Level: 8'
-
From the oversized garage to the flexible bonus space, the Midnight Ridge is designed for modern families who need extra room and extra strength. Whether you’re building a primary residence, a forever home, or a lodge-style getaway, this steel-framed beauty delivers with style, scale, and confidence.
Call 800-513-1675 or click “Request a Quote” to start your Midnight Ridge build.
Delivered and installed nationwide.
Free shipping on orders over $50. Standard delivery takes 5-7 business days.