
The Countryside Ranch Metal House Kit – Affordable, Durable, and Spacious Living!
Price Options:
- $68,000 (without garage)
- $98,000 (with garage addition)
Key Features:
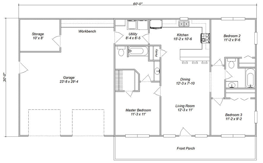
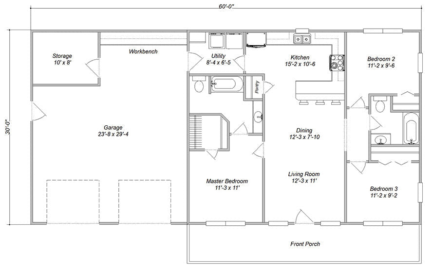
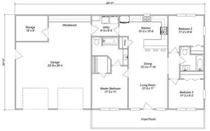
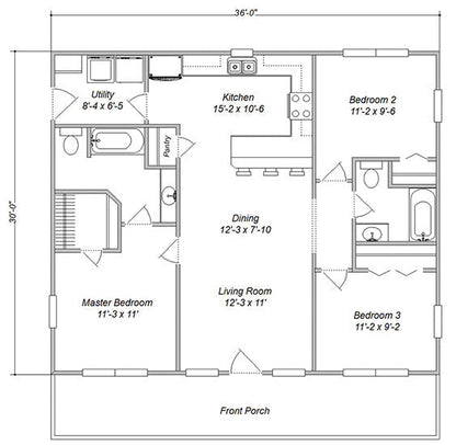
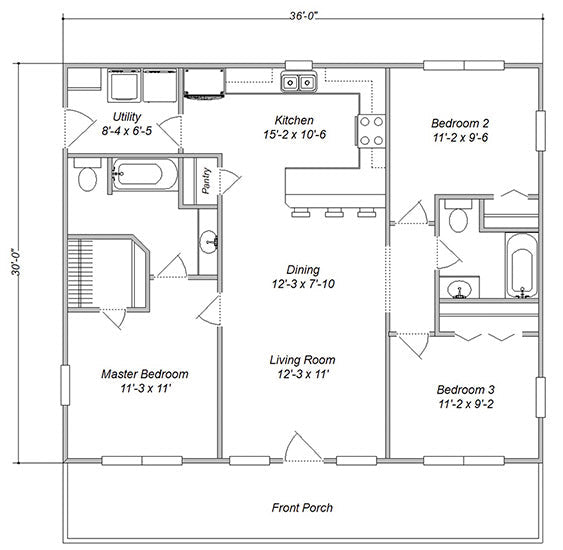
- Living Space: 1,400 sq. ft. of thoughtfully designed interiors.
- Layout: 3 bedrooms, 2 baths, plus a bonus office that can double as a guest room.
- Front Porch: Includes a full-length 6-ft covered front porch, perfect for relaxing or entertaining.
- Flexible Footprint: 40 ft x 44 ft with a 20 ft x 8 ft covered porch.
Materials Included:
-
Steel Construction:
- Pre-punched galvanized 4″ steel studs for exterior walls.
- Steel roof system, eave struts, and column anchors.
- Galvanized upper and lower tracks for walls.
- Exterior Trim Package: Low-maintenance materials available in a wide range of colors.
- Roofing and Siding Metal: 29-gauge with a 40-year warranty.
- EZ-Foundation System for simplified setup.
- Optional Upgrades: OSB sheathing available.
Shipping:
- FREE nationwide shipping included.
Why Choose The Countryside Ranch?
This versatile metal house kit offers a perfect blend of style, durability, and affordability:
- Modern Design: Spacious and functional layout ideal for families or downsizers.
- Low-Maintenance: Durable materials ensure easy upkeep and long-lasting quality.
- Energy-Efficient: Smart design for cost-effective living.
- Customization: Add a garage or personalize the interiors to suit your needs.
Turnaround Time: Ready to ship in just 14–16 weeks.
Flexible Financing: Layaway options available to make your dream home a reality.
Own Your Dream Home Today!
Start building your future with The Rancher Metal House Kit – one of our most popular designs. Call 502-298-8946 or contact us now for more details.
Limited-Time Offer: Get The Countryside Ranch for just $68,000 without the garage when you act now. Don’t miss this incredible opportunity to own an affordable, high-quality metal home kit!
Does this version align with your vision? Let me know if you need any adjustments!
Free shipping on orders over $50. Standard delivery takes 5-7 business days.