
Kit Name: The Cedar Brook
Category: METAL HOUSE KITS
Description:
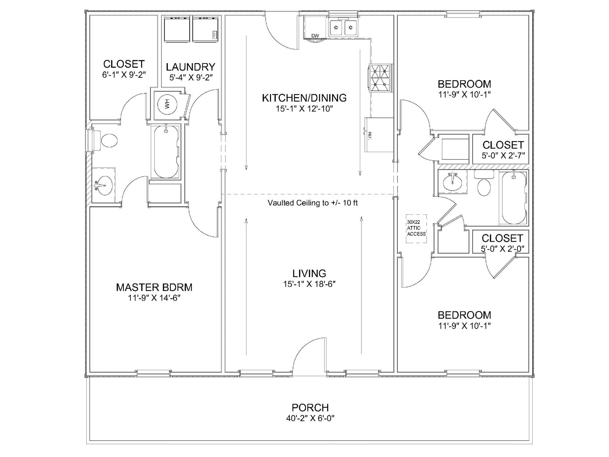
Timeless charm meets practical design in The Cedar Brook — a 3-bedroom, 2-bath metal house kit offering 1,280 square feet of thoughtfully arranged living space. With clean vertical siding, a 26-gauge metal roof, and a welcoming front porch, this model blends classic country aesthetics with modern simplicity.
Ideal for homesteads, vacation retreats, or permanent residences, The Cedar Brook offers an affordable, flexible path to homeownership.
🔧 TWO INSTALLATION OPTIONS — SCROLL TO BOTTOM TO CHOOSE:
We install the exterior shell for you
OR you install it yourself (DIY)
Important Notes:
-
This is a shell-only kit — turnkey service is not offered.
-
All framing is metal (not wood) for strength and durability.
-
Interior finishes are not included — giving you full freedom to finish when you're ready.
What’s Included:
-
Pre-engineered metal framing
-
26-gauge vertical metal siding
-
26-gauge metal roof
-
Metal trusses
-
Double-pane exterior windows
-
Exterior doors
-
All components needed to dry-in the home and make it fully weather-tight
This kit is a great way to get under roof fast, avoid a mortgage, and finish your home on your own timeline. It’s one of our best-selling models!
Free Floor Plan Included
You’ll receive a complimentary floor plan designed specifically for The Cedar Brook.
Want changes? A $2,500 design fee applies.
Love it as-is? No extra charge — just choose your installation method and go!
Shipping Info:
📦 Shipping to most states is currently FREE!
✅ Be sure to ask our team if your state qualifies for free shipping.
Kit Specifications:
-
Total Living Area: 1,280 sq. ft.
-
Bedrooms: 3
-
Bathrooms: 2
-
Garage: No
-
Framing: All-metal (2x4)
-
Roof Pitch: 4/12
-
Ceiling Height: 8 ft.
-
Dimensions: 40 ft. (Length) x 32 ft. (Depth)
Ready to Get Started?
📞 Call our team at 800-513-1675 if you have questions or you're ready to place your order. We’re here to help!
Let me know if you'd like this formatted for a brochure, website product page, or printable flyer.
Free shipping on orders over $50. Standard delivery takes 5-7 business days.