Amish Built Cabins
Laguna Vista House Kit (3 bed 2.5 bath)
Laguna Vista House Kit (3 bed 2.5 bath)
Couldn't load pickup availability
Introducing the **Laguna Vista**, a stunning new addition to our home plan collection, featuring a modern and spacious **2-story** design with **3 bedrooms** and **2.5 baths**, offering an expansive **2,159 sq. ft.** of living space. This home includes a convenient **2-car attached garage**, perfect for families needing extra storage or space for vehicles.
The **Laguna Vista** showcases an open-concept living area that creates a seamless flow throughout the home, enhanced by vaulted ceilings in the main living spaces, allowing for abundant natural light and a feeling of spaciousness. The large master ensuite retreat offers a private sanctuary, while the additional bedrooms provide ample space for family or guests.
### What’s Included:
- Generous **3-bedroom** and **2.5-bath** layout for comfortable living.
- **2-car attached garage** for convenience and additional storage.
- Modern open-concept design with vaulted ceilings in the main living areas.
- Expansive master ensuite retreat for relaxation and privacy.
- Spacious bedrooms on both levels to accommodate family and guests.
- Quality construction materials ensuring durability and longevity.
- **Panelized SIPs (Structural Insulated Panels)** for superior energy efficiency and reduced construction time.
- **Pre-cut floor trusses** to streamline the building process.
- **Engineered roof trusses** for added structural integrity.
- **High-quality windows** and exterior finishes for a polished look.
- **Roof shingles** for reliable weather protection.
- **Insulation and drywall** included.
- **Delivery included** in the price
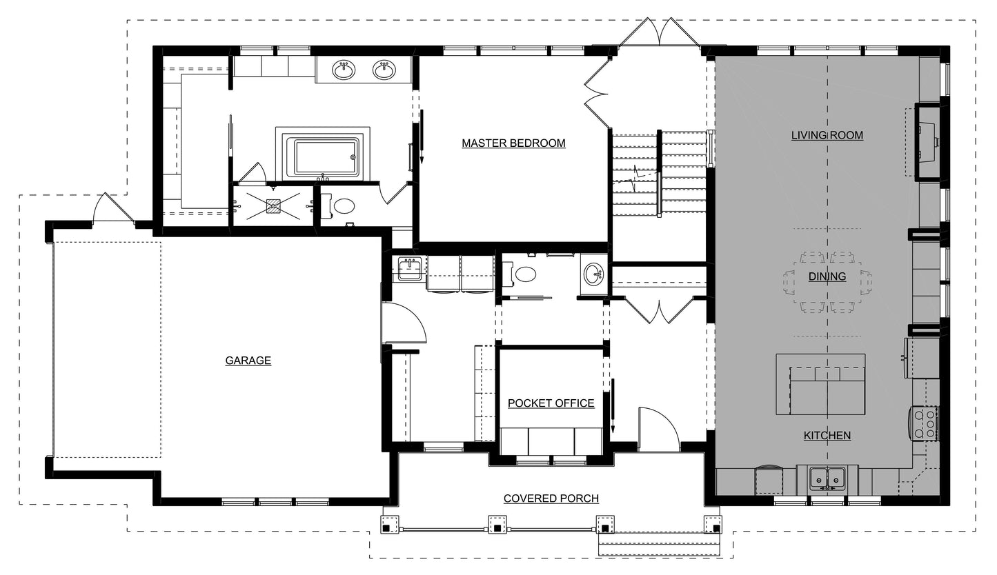
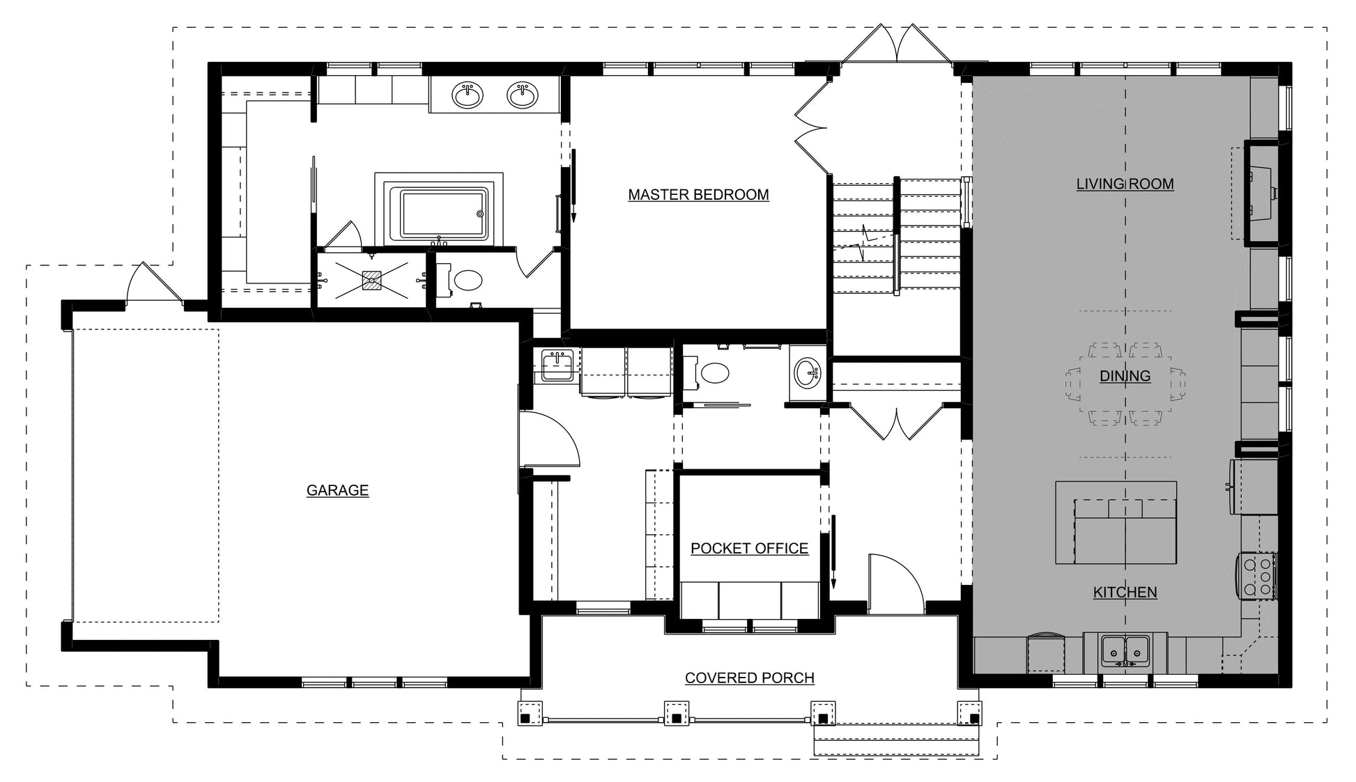
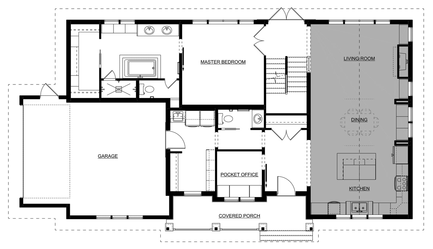
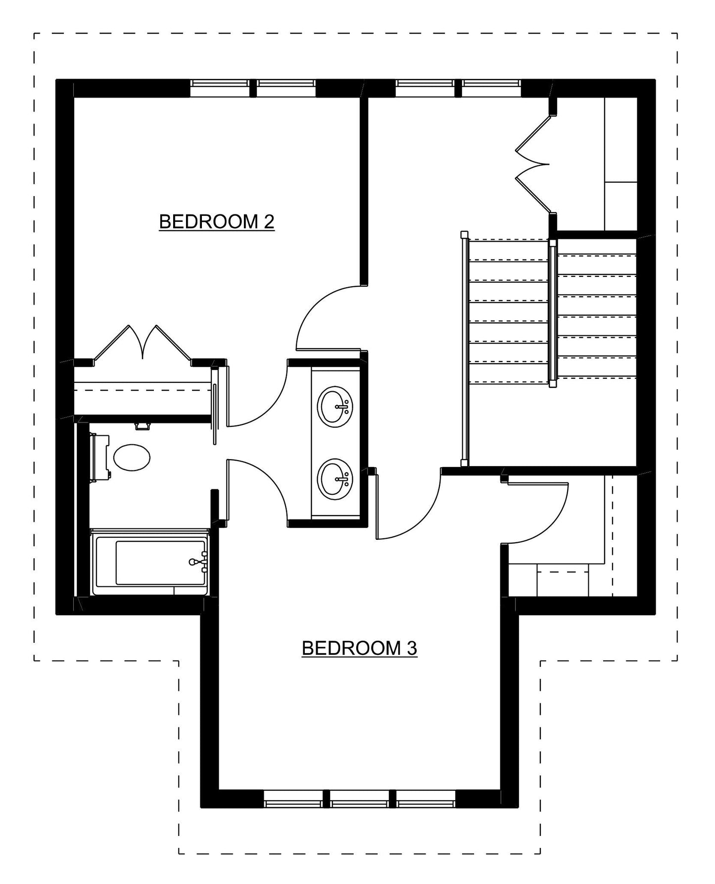
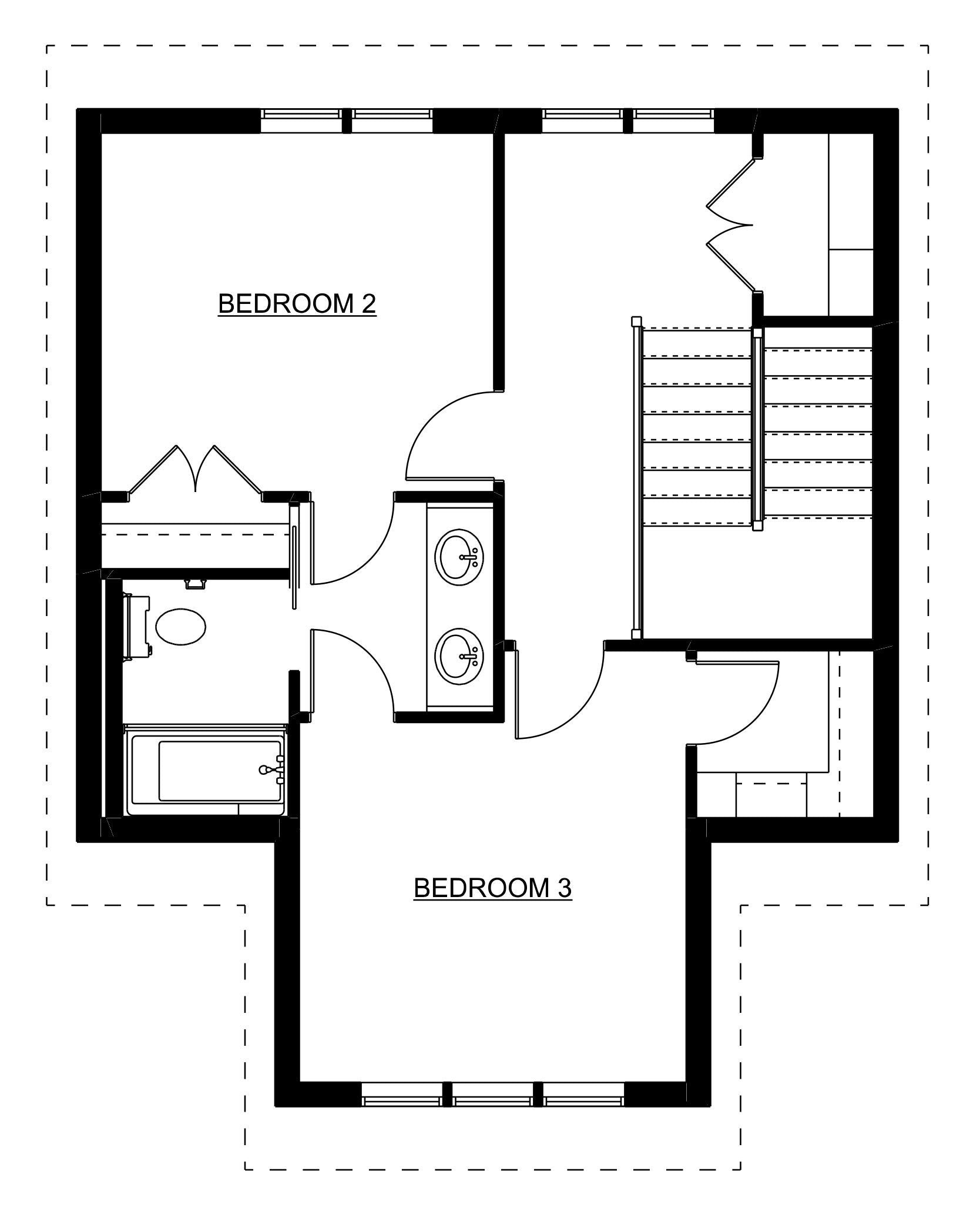
### Floor Plan Measurements
- **Total Area**: 2,159 sq. ft.
- **Overall Dimensions**: 36' 0" W x 59' 0" D
#### Room Dimensions:
- **Living Room**: 16' 8" x 12' 10"
- **Kitchen**: 16' 8" x 11' 10"
- **Dining Room**: 16' 8" x 8' 0"
- **Pocket Office**: 7' 8" x 7' 10"
- **Master Bedroom**: 14' 0" x 13' 10"
- **Bedroom #2**: 11' 8" x 10' 10"
- **Bedroom #3**: 11' 8" x 10' 10"
- **Garage**: 25' 0" x 18' 0" / 20' 0"
For more information or to inquire about availability, call us at **502-298-8946** or visit our website to fill out a contact form. Discover the beauty and comfort of the **Laguna Vista** as your next home!
Share


